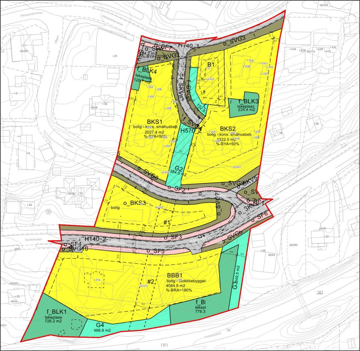
Kunngjøring om planendring - detaljregulering Nye Seljestad - PID 201803- FRIST: 2. mars 2026Senja kommune har vedtatt en såkalt mindre reguleringsendring etter PBL § 12-14, 2. avsnitt. Publisert av Roger Skog Publisert 10.02.2026 08.47 Sist endret 10.02.2026 08.56 Om planendringenDelegert planvedtak DPV 1/26 ble fattet den 3/2-2026. Planendringen tillater flytting av lekearealene f_BLK3 og f_BLK4 i plankartet slik at plankartet stemmer overens med dagens situasjon. Et av arealene som var satt av til lekeareal i reguleringsplanen brukes i dag som carport. En flytting av lekearealene vil dermed bidra til at carportene er i tråd med planen, samtidig som lekearealene i boligfeltet ivaretas. Størrelsen på lekearealene forblir uendret.Reviderte plandokumenterAlle vedtaksdokumenter er tilgjengelig i kommunens planregister: Klikk på lenken under og gå inn på “planbehandlinger” - og se informasjon om “vedtatt mindre endring”.Planregister Senja kommune...Ved å følge oppgitte lenke kan du laste ned alle vedtaksdokumenter i PDF format og se revidert plankart direkte i kartløsning oppe til høyre i skjermbildet.Kart - revidert plankart for "Nye Seljestad, PID 201803Om vedtaketDen vedtatte planendringen er straks bindende for alle søknadspliktige tiltak etter PBL § 20-1 bokstav a-m. Krav om innløsning etter PBL § 15-2 eller erstatning etter PBL § 15-3 må fremmes innen 3 år regnet fra vedtaksdato. Vedtaket kan i henhold til Forvaltningsloven § 28, 2. ledd påklages. En eventuell klage må fremsettes skriftlig innen 3 uker, regnet fra kunngjøringsdato. Kunngjort på kommunens nettside den 10/2-26 og dermed blir frist den: 2/3-2026.Klagen merkes med «Mindre endring av detaljregulering Nye Seljestad plansak 2025/7482» og sendes til: post@senja.kommune.no eller Senja kommune, Pb. 602, 9306 Finnsnes.