Kunngjøring om planendring - detaljregulering Torggata 2-8 - PID 202110- FRIST: 31. oktober 2025

Senja kommune har vedtatt en såkalt mindre reguleringsendring etter PBL § 12-14, 2. avsnitt.

Om planendringen

Delegert planvedtak DPV 1/25 ble fattet den 8/10-2025. Planendringen berører boligdelen idet det tillates en annen utforming av den planlagte boligbebyggelsen. Regulert uteoppholdsareal på taket av næringsdelen ble litt forandret, grunnet endret plassering av boligdelen, men ikke redusert i arealstørrelse. Maksimalt antall boliger er uforandret (40 stk.). Forslag til endring ble fremmet av tidligere forslagsstiller.

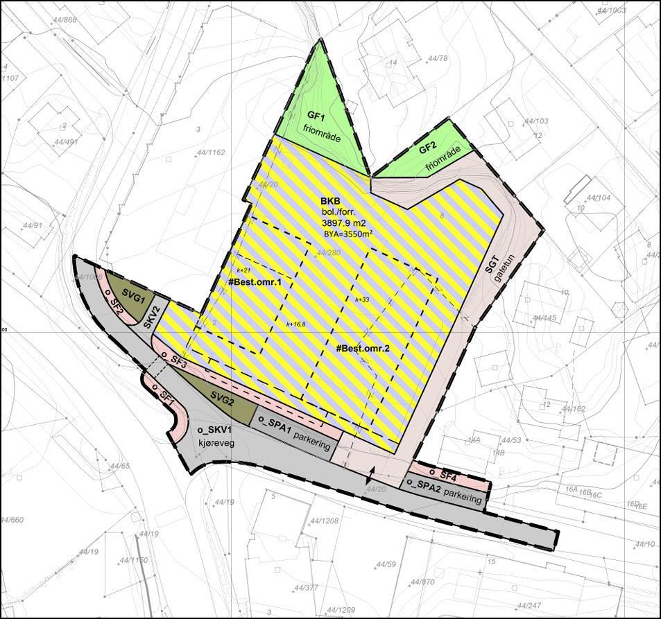
PID 202110 - Torggata 2-8 - revidert plankart etter vedtak

 

Reviderte plandokumenter

Alle vedtaksdokumenter er tilgjengelig i kommunens planregister: 
Klikk på lenken under og gå inn på “planbehandlinger” - og se informasjon om “vedtatt mindre endring”.

Planregister Senja kommune...

Ved å følge oppgitte lenke kan du laste ned alle vedtaksdokumenter i PDF format og se revidert plankart direkte i kartløsning oppe til høyre i skjermbildet.

Om vedtaket

Den vedtatte planendringen er straks bindende for alle søknadspliktige tiltak etter PBL § 20-1 bokstav a-m.  Krav om innløsning etter PBL § 15-2 eller erstatning etter PBL § 15-3 må fremmes innen 3 år regnet fra vedtaksdato.  

Vedtaket kan i henhold til Forvaltningsloven § 28, 2. ledd påklages. 

En eventuell klage må fremsettes skriftlig innen 3 uker, regnet fra kunngjøringsdato.  
Kunngjort i avis den 10/10-25 og dermed blir frist den: 31/10-2025.
 

Klagen merkes med «Mindre endring av detaljregulering Torggata 2-8, plansak 2025/3481» og sendes til: post@senja.kommune.no eller Senja kommune, Pb. 602, 9306 Finnsnes.

Planendringen er kunngjort per brev den 8/10-25, i avis den 10/10-25, og på kommunens nettside den 13/10-25.